4930 W Pinto Loop
Beverly Hills, FL 34465

Scroll to Content

Details

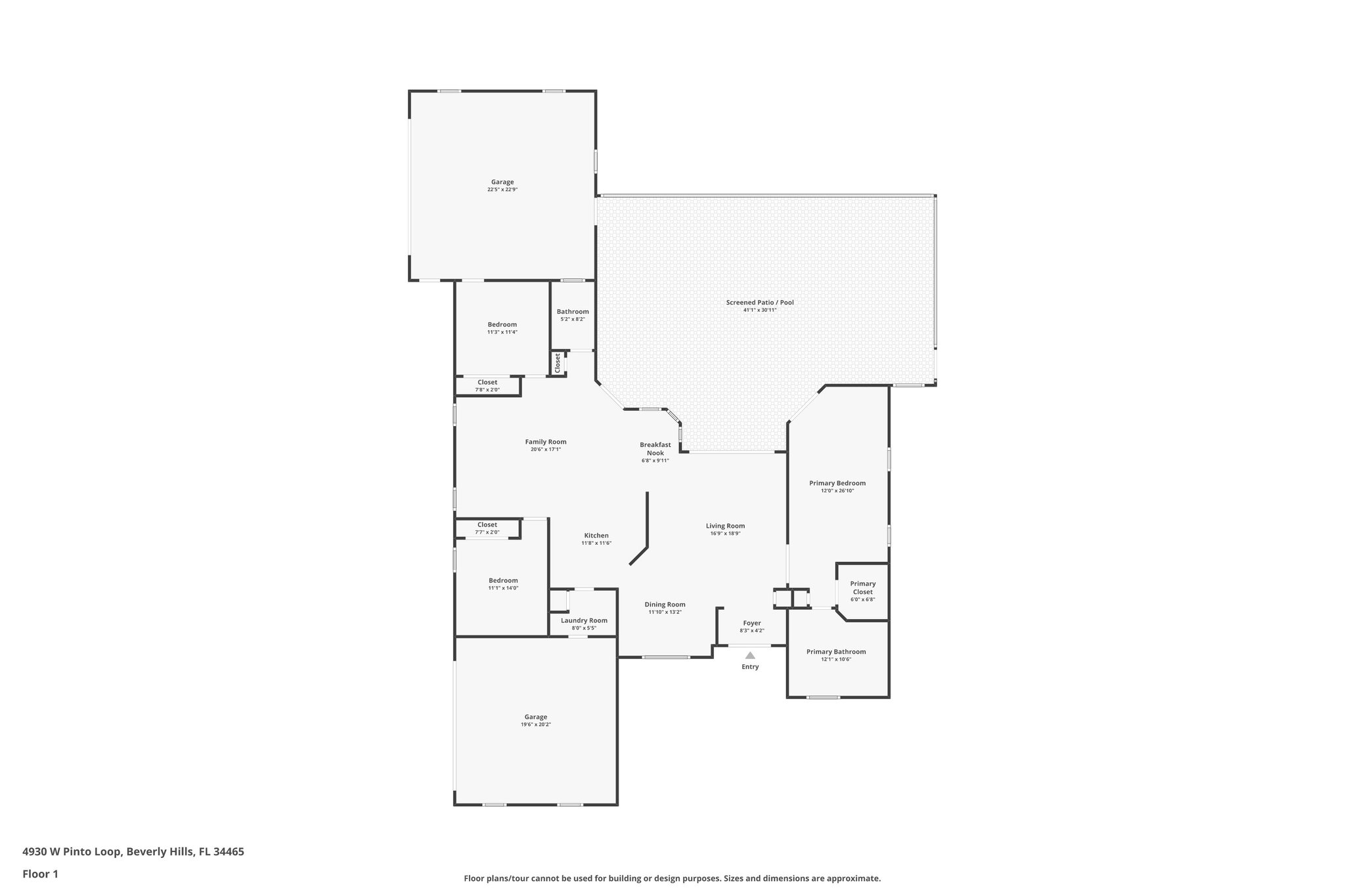
Set in the sought-after Pine Ridge community on a serene 1.34-acre wooded lot, this 3-bedroom, 2-bath home welcomes you with a long, natural driveway that extends into a side circular drive leading to split garages at both the front and back of the property, offering a total of four garage spaces and an elegant sense of arrival surrounded by mature trees and lush natural landscaping. The front porch invites you in with textured flooring, tall columns, arched windows, and a smooth light-toned ceiling framing the double-door entry that opens into a bright foyer with tile flooring and direct views of the shimmering pool through wide sliding windows. The dining and family room combination features wood-look luxury vinyl flooring, an open layout, and large windows that fill the space with daylight, with the dining area thoughtfully positioned to the left as you step in. Nearby, the breakfast nook offers the perfect spot to start each morning, surrounded by windows overlooking the pool and connected to the kitchen, which includes tile flooring, white cabinetry, stainless steel appliances, a breakfast bar, a dual sink, and an airy pass-through that opens to the living area. The living room continues the home's seamless flow with luxury vinyl flooring, wide windows framing views of the private backyard, and open access to the kitchen. The primary bedroom feels like a peaceful retreat with wood-look flooring, abundant natural light from large windows, and a sliding glass door leading directly to the pool area, while the ensuite bathroom offers granite countertops, dual vanities, a walk-in glass shower, and a soaking tub beneath a stunning arched window. Bedrooms two and three feature the same warm flooring, spacious walk-in closets, and access to a shared bathroom with a tub-and-shower combination. Outside, the screened pool area becomes an everyday escape with textured flooring, wide sliding windows connecting the interior to the outdoors, and tranquil views of the tree-lined backyard with natural ground cover. Nearby attractions include the Withlacoochee State Trail, a popular paved path ideal for biking, jogging, and nature walks; the wildlife-rich waters of Crystal River, perfect for boating and exploring Florida’s natural springs; and Beverly Hills Community Park, where open green spaces, walking paths, and recreational amenities offer outdoor enjoyment just minutes from home.

  • $479,000
  • 3 Bedrooms
  • 2 Bathrooms
  • 58,570 Sq/ft
  • Lot 1.34 Acres
  • 2 Parking Spots
  • Built in 2002
  • MLS: 2256941 / W7881138 / 850387

Images

Floor Plans

3D Tour